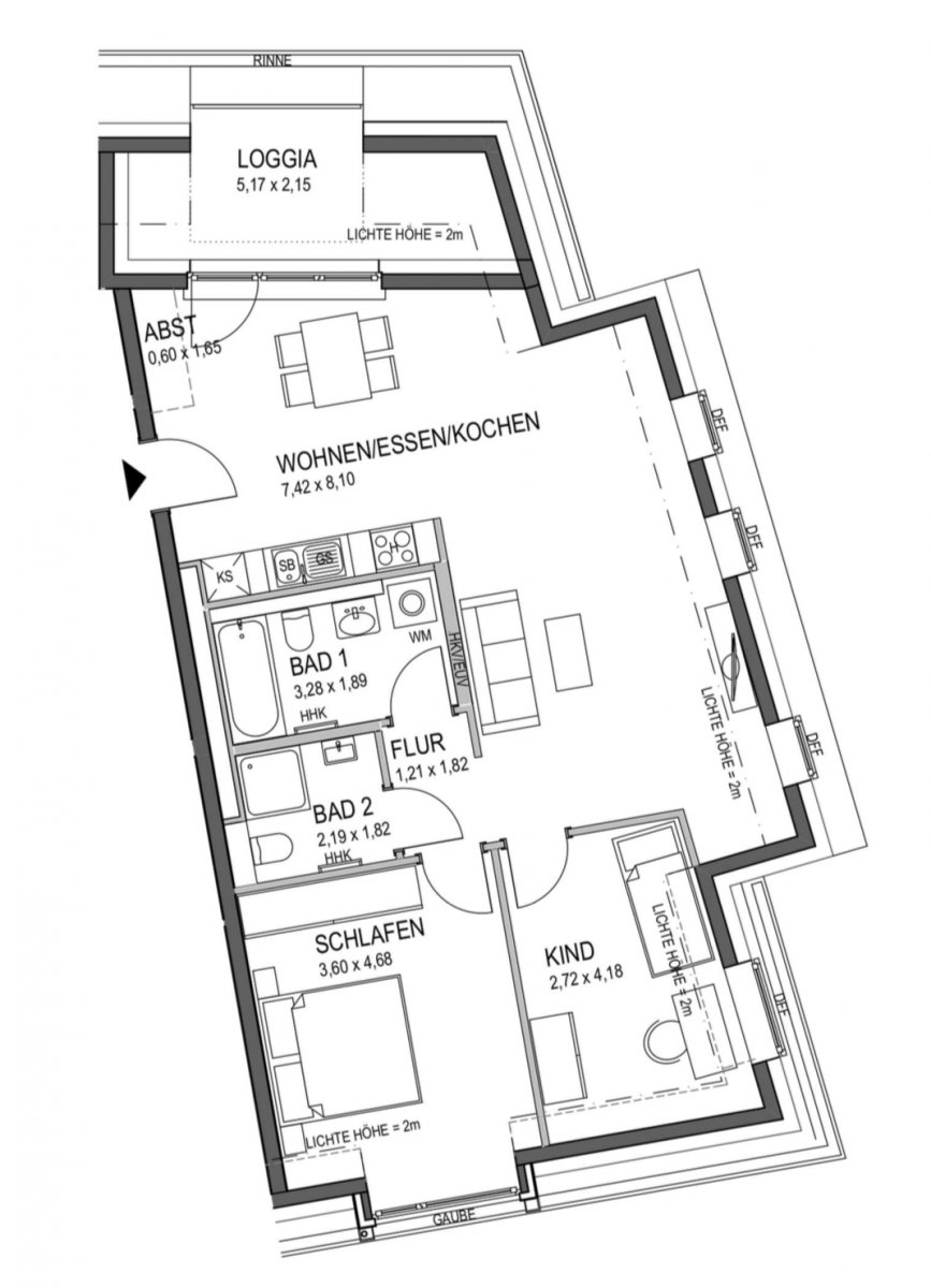
GRUNDRISS

59 %

PROJEKTDATEN

Conceptbau

  • Wohneinheit: 88
  • Projekt: - Bavaria Palais
  • Ort: 80336 München
  • Strasse: Bavariaring 8-9
  • Lage: München
  • Kaufpreis: ---- € *
  • * Preis vom 15.05.2018

Grundriss Analyse

Der Grundriss hat eine Gesamtwertung von 59 % erreicht. Das Analyseergebnis gibt Aufschluss über die Alltagstauglichkeit des Wohnungszuschnitts.
Die Wohnung hat ein tragfähiges Gesamtkonzept, leidet in einigen Bereichen aber unter funktionalen und konzeptionellen Schwächen:

  • Orientierung nach Himmelsrichtung

    Balkon oder Terrasse erhalten keine Mittags- oder Abendsonne.

  • Funktionierende Küche

    Raumhohe Schränke als Stauraum in der Küche sind nicht vorgesehen.

  • Belichtung / Fensteranschluss

    Im Bad gibt es nur künstliche Beleuchtung und Lüftung - kein Tageslicht.
    Im Gäste-WC gibt es nur künstliche Beleuchtung und Lüftung.

  • Raumzuordnung

    Das Schlafzimmer ist nicht vom Flur aus zugänglich. Die Diskretion ist beeinträchtigt.
    Das Kinderzimmer wird nicht vom Flur aus erschlossen. Diskretion ist nicht gewährleistet.
    Das Wohnzimmer ist zentraler Aufenthaltsort und daher als Durchgangszimmer ungeeignet.
    Ein zusätzlicher Balkon oder Terrasse am Schlafzimmer fehlt.
    Ein ergänzender Balkon oder Terrasse beim Kinderzimmer fehlt.

  • Raumprogramm - Ausstattung

    Eine separate Dusche im Bad ist nicht vorgesehen.
    Die übliche Schrankbreite für Kleidung ist zu gering dimensioniert.
    Die Garderobe ist nicht ausreichend dimensioniert und schränkt die empfohlene Flurbreite ein .
    Ein Arbeitsplatz für Home-Office ist nicht vorgesehen.

  • Grössengewichtung der Teilräume

    Die empfohlene Mindestgröße des Kinderzimmers wurde unterschritten.

  • Raumbezüge - Erlebnisqualität

    Der optische Abschluß zur Küche mit Hilfe eines Bartresens ist nicht realisierbar.

Die sich daraus ergebende Wohnqualität ist eingeschränkt und sollte verbessert werden. Analyseergebnisse unter 60 % lassen sich deutlich steigern - hohe Grundrissqualitäten erzielen optimale Verkaufswerte. Eine Grundriss Optimierung wird empfohlen um das Grundrisskonzept und die Wohnqualität attraktiver zu machen.

ANALYSE KRITERIEN

  • Balkon oder Terrasse erhalten keine Mittags- oder Abendsonne.

     37.88 %
    Orientierung nach Himmelsrichtung
  •  100.00 %
    Raumproportionen - Raumzuschnitte
  • Raumhohe Schränke als Stauraum in der Küche sind nicht vorgesehen.

     72.86 %
    Funktionierende Küche
  • Im Bad gibt es nur künstliche Beleuchtung und Lüftung - kein Tageslicht.
    Im Gäste-WC gibt es nur künstliche Beleuchtung und Lüftung.

     65.73 %
    Belichtung / Fensteranschluss
  • Das Schlafzimmer ist nicht vom Flur aus zugänglich. Die Diskretion ist beeinträchtigt.
    Das Kinderzimmer wird nicht vom Flur aus erschlossen. Diskretion ist nicht gewährleistet.
    Das Wohnzimmer ist zentraler Aufenthaltsort und daher als Durchgangszimmer ungeeignet.
    Ein zusätzlicher Balkon oder Terrasse am Schlafzimmer fehlt.
    Ein ergänzender Balkon oder Terrasse beim Kinderzimmer fehlt.

     46.00 %
    Raumzuordnung
  • Eine separate Dusche im Bad ist nicht vorgesehen.
    Die übliche Schrankbreite für Kleidung ist zu gering dimensioniert.
    Die Garderobe ist nicht ausreichend dimensioniert und schränkt die empfohlene Flurbreite ein .
    Ein Arbeitsplatz für Home-Office ist nicht vorgesehen.

     35.71 %
    Raumprogramm - Ausstattung
  • Die empfohlene Mindestgröße des Kinderzimmers wurde unterschritten.

     83.53 %
    Grössengewichtung der Teilräume
  • Der optische Abschluß zur Küche mit Hilfe eines Bartresens ist nicht realisierbar.

     0.00 %
    Raumbezüge - Erlebnisqualität
  •  100.00 %
    Maßstabgerechte Darstellung
  •  58.93 %
    Gesamtwertung